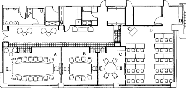
Conference Center Floor Plan
|
Conference room description and layout: |
|
|
|
Room |
Number of People |
Set Up/Rental Fee |
|
Conference Room A |
16 - 18 |
No charge |
|
Conference Room B |
8 - 10 |
No charge |
|
Conference Room C |
4 - 6 |
No charge |
|
Conference Room D |
< 36 |
No charge |
